3168 Via Centrale Unit# 1102

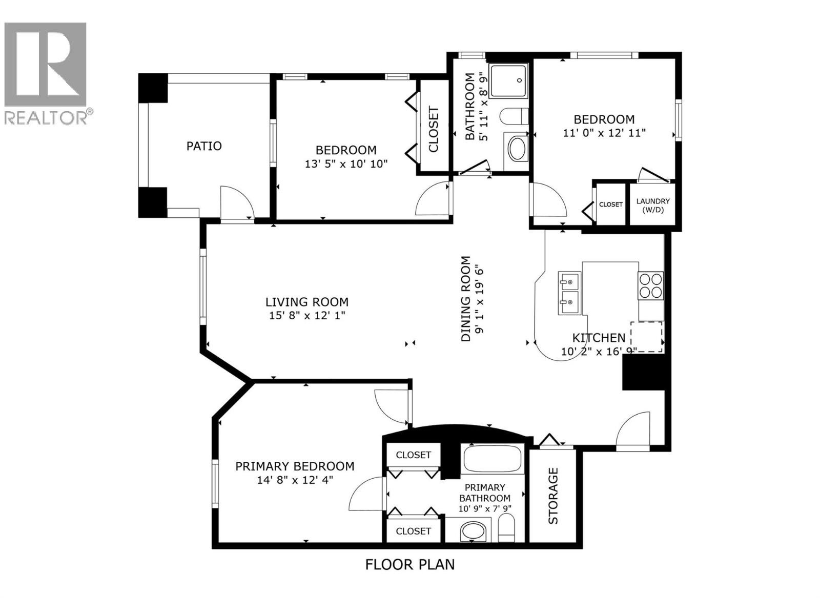
RARE OPPORTUNITY – Exceptional 3 BEDROOM / 2 BATH ground-floor residence at The Pointe at Quail Ridge with TWO SECURE PARKING STALLS! This unique CORNER UNIT has been thoughtfully RENOVATED (with strata approval) to create a true third bedroom—ideal for those seeking additional space. A functional open-concept layout integrates the kitchen/dining and living areas creating a seamless flow perfect for both everyday living & entertaining. The kitchen features large counter space for meal prep, while a desirable split-bedroom design ensures privacy for all occupants. The spacious primary suite includes a 3-piece ensuite and his-and-hers closets. Updated lighting, a newer washer/dryer, and fresh paint make this home truly move-in ready! Step outside to a fully covered patio which extends your living area and provides easy access to green space - perfect for pet owners. Generous in-suite storage room, A/C + access to a seasonal outdoor pool. With pet/rental-friendly bylaws, this home presents a fantastic opportunity for down-sizers, investors, first-time buyers, or anyone seeking a low-maintenance lifestyle. Located in a desirable Quail Ridge community just steps from the Quail and Bear golf courses, and minutes to UBCO, YLW + essential amenities. Don’t miss your chance to own in this well-established and sought-after community—where golf course living meets everyday convenience! Strata fee includes heating/cooling! *furnished photos virtually staged* (id:58842)

Property Information

Property Type
Residential
SqUARE FOOTAGE
1254
 sqft
Structure Type
Apartment
LAND SIZE
Roof Type
Lot
SEWER Type
Municipal sewage system
Parking Spots
2
stories
1.0
Floor Type
Tile, Laminate

More Information

Security
Controlled entry, Smoke Detector Only
View
Parking
Parkade
Exterior
Stucco
Community
Pet Restrictions, Pets Allowed With Restrictions, Rentals Allowed
Common inTEREST
Condo/Strata
Listing Key
29016010
MLS ID
10363978
listing Office
listing Office key
61706
3
Beds
2
Baths
$
475000

Virtual Tour

Map

Map

can help you buy this property.

Thank you! Your submission has been received!
Oops! Something went wrong while submitting the form.

Cathy Kennedy

can help you buy this property.

Thank you! Your submission has been received!
Oops! Something went wrong while submitting the form.