3105 31 Avenue Unit# C

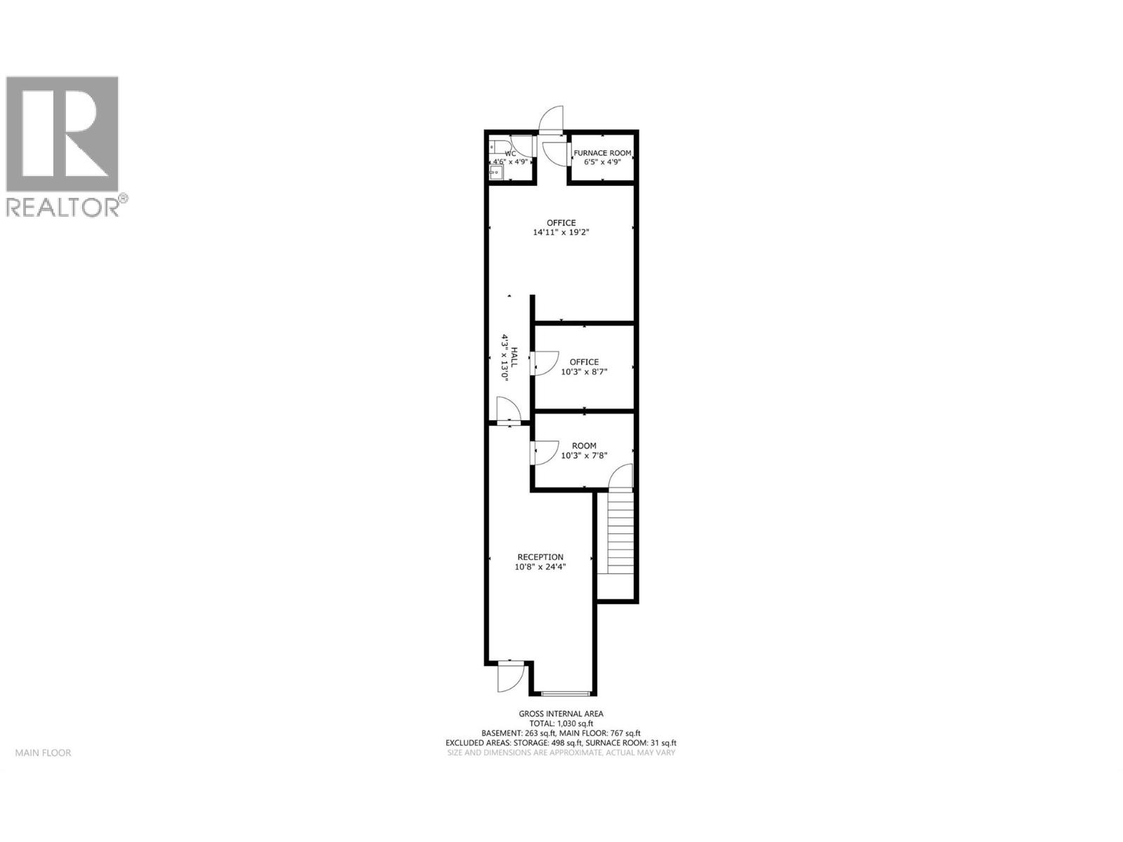
Ground floor unit available to lease by December. Tenant improvements will be factored into lease negotiations. New paint , lighting and possibly flooring will be considered. Amazing location right downtown in the heart of Vernon. Walls can be moved with ease and this unit comes with a bonus space in the basement. Access must be given for one other tenant in the building. Comes with a one parking stall in the back. (id:58842)

Property Information

Property Type
Residential
SqUARE FOOTAGE
1165
 sqft
Structure Type
Residential Commercial Mix
LAND SIZE
Roof Type
Lot
SEWER Type
Parking Spots
0
stories
Floor Type

More Information

Security
View
Parking
Exterior
Community
Common inTEREST
Listing Key
29119167
MLS ID
10369318
listing Office
listing Office key
47754
0
Beds
0
Baths
$
0

Virtual Tour

Map

Map

can help you buy this property.

Thank you! Your submission has been received!
Oops! Something went wrong while submitting the form.

Cosette Kempston

can help you buy this property.

Thank you! Your submission has been received!
Oops! Something went wrong while submitting the form.