2931 Thacker Drive

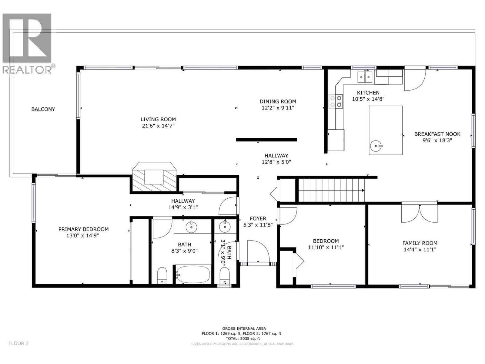
Luxurious Lakeview Heights Home Listed under BC Assessment - Experience unparalleled luxury in this Lakeview Heights home on the Wine Trail. Boasting three bedrooms, three bathrooms, a pool, hot tub, sauna, RV parking, an outdoor fire pit, a charming pond with a babbling stream, and two driveways, this property combines convenience and relaxation. A sparkling pool invites you to unwind, while the hot tub and rejuvenating sauna promise relaxation. You will appreciate the convenient RV parking. Gather around the outdoor fire pit or enjoy the tranquil pond with a meandering stream, adding serenity to your outdoor space. Two driveways provide ample parking space, ensuring convenience for your vehicles and guests. Inside, an open-concept layout and ample natural light create a beautiful living space. The kitchen is a chef's dream, and cozy living areas are perfect for entertainment. The master suite, with private outdoor access, is a retreat. Additional bedrooms offer space for family, guests, or a home office. Surrounded by lush landscaping and well-maintained lawns, the property ensures privacy and tranquility. Located in a desirable Lakeview Heights neighborhood, zoning allows for a carriage home. Minutes from world-class wineries, hiking trails, shopping, and dining, this location blends convenience with Okanagan's natural beauty. Don't miss this chance to own a property that combines luxury and comfort! (id:58842)

Property Information

Property Type
Residential
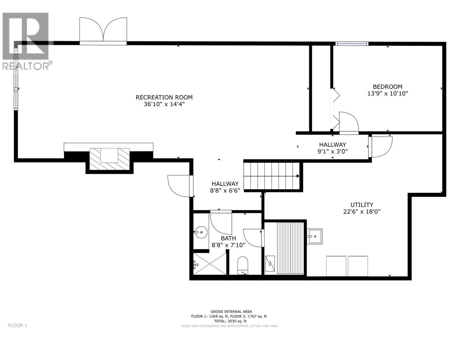
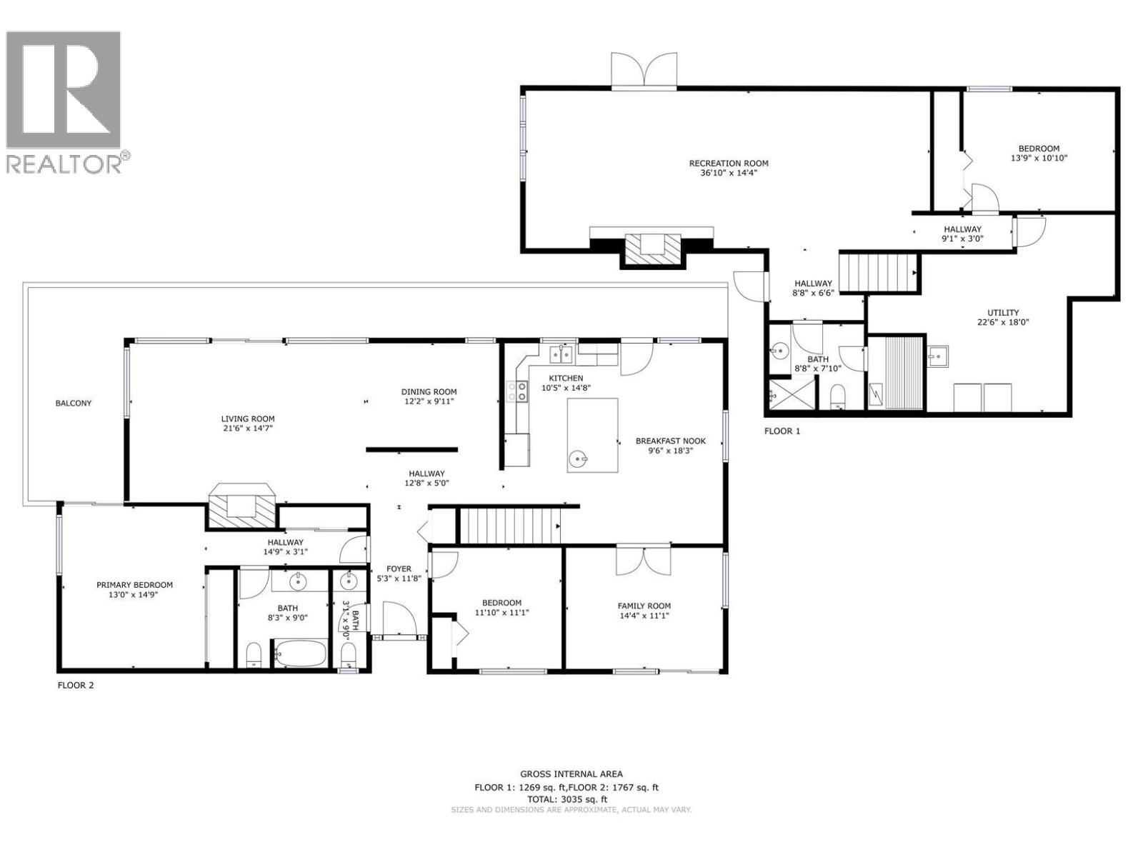
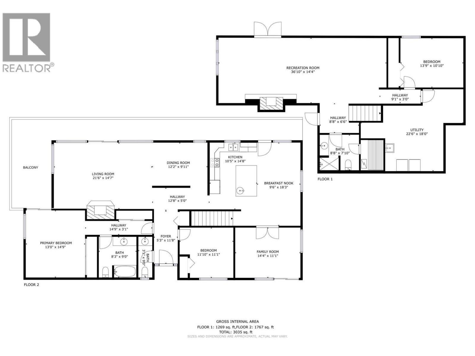
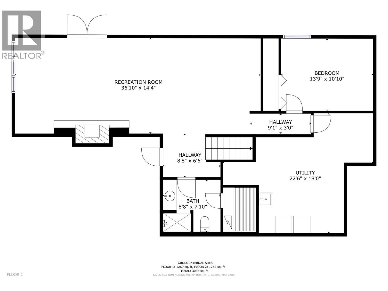
SqUARE FOOTAGE
3290
 sqft
Structure Type
House
LAND SIZE
0.21 acres
Roof Type
Asphalt shingle
Lot
Private setting, Corner Site
SEWER Type
Municipal sewage system
Parking Spots
7
stories
2.0
Floor Type
Hardwood, Carpeted, Ceramic Tile

More Information

Security
View
Mountain view
Parking
Attached Garage, Additional Parking
Exterior
Stucco
Community
Family Oriented
Common inTEREST
Freehold
Listing Key
28849783
MLS ID
10362482
listing Office
listing Office key
237276
3
Beds
3
Baths
$
988000

Virtual Tour

Map

Map

can help you buy this property.

Thank you! Your submission has been received!
Oops! Something went wrong while submitting the form.

David Delorme

can help you buy this property.

Thank you! Your submission has been received!
Oops! Something went wrong while submitting the form.