2814 44 Avenue

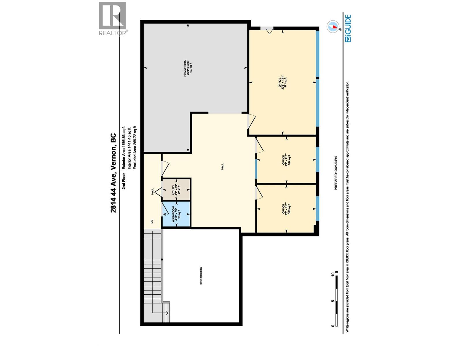
This Service Commercial building in Vernon is being offered for sale with a Service commercial zoned smaller home on an adjacent lot as part of the package. The commercial building boasts 9000+ sq ft & is demised into 2 spaces with roughly 3,300 sqft on the ground level for each space. Each ground level unit have mezzanine space as well. One ground level unit is currently vacant & ready for Owner use or for lease. It has an adaptable layout with a large open retail area up front with high ceilings & plenty of natural light. The main level is 3340 sqft & there is a 1566 sqft mezzanine currently set up with 3 offices & a bathroom. Under the mezzanine is storage & work areas with a side room with high ceilings & a receiving area with 13' overhead door, bathroom on ground level too. The 2nd space was custom built for the current long term tenant with lease in place to January 31, 2026. Okanagan Glass - a 30 year old established glazing business specializing in commercial installations, ICBC insurance claims, residential windows for new & renovations, shower doors all types of custom glass projects. The small rental home on the adjacent lot is situated close to 29 Street, providing room for additional parking & snow storage. Viewing of the rental home is available on a second showing of the entire property. The CMUB – Commercial Mixed Use Business zoning offers opportunities for future development with a wide variety of permitted uses. 29th Street has been substantially upgraded. (id:58842)

Property Information

Property Type
Commercial
SqUARE FOOTAGE
9086
 sqft
Structure Type
Other
LAND SIZE
0.47 acres
Roof Type
Tar & gravel, Other
Lot
Level lot, Corner Site
SEWER Type
Municipal sewage system
Parking Spots
8
stories
Floor Type

More Information

Security
Smoke Detector Only
View
Parking
Exterior
Stucco
Community
Common inTEREST
Freehold
Listing Key
29590281
MLS ID
10382743
listing Office
listing Office key
293926
0
Beds
0
Baths
$
1460000

Virtual Tour

Map

Map

can help you buy this property.

Thank you! Your submission has been received!
Oops! Something went wrong while submitting the form.

Trish Watson

can help you buy this property.

Thank you! Your submission has been received!
Oops! Something went wrong while submitting the form.