261 Ashcroft Court

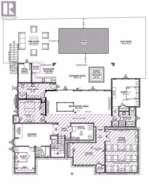
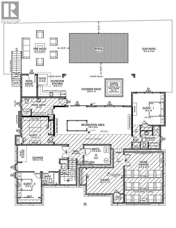
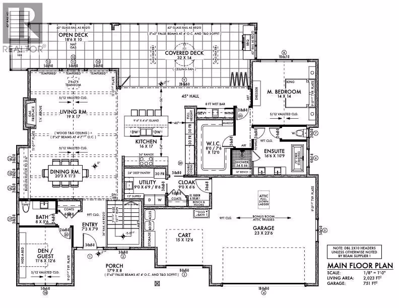
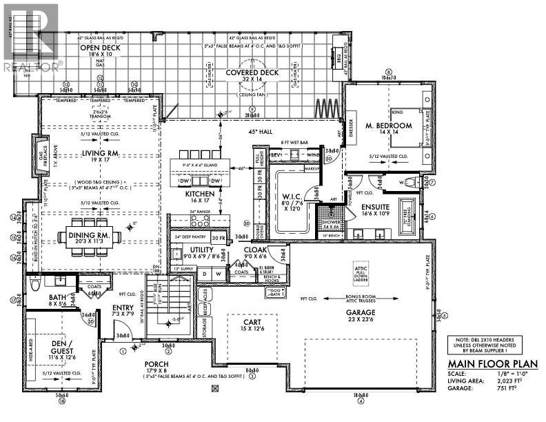
Welcome to 261 Ashcroft Court, an exceptional lot offering a fantastic opportunity to build your dream home. This .24-acre lot represents one of the last walkout option available, making it a rare find in Predator Ridge. The walkout layout is the ideal choice, providing you with endless possibilities to design your home to perfection, or purchase the existing drawings and start building! With ample space, you have the freedom to bring your vision to life and create a residence that suits your lifestyle. Enjoy the luxury of stunning views that are hard to come by. Are you a golfer? Ask your agent about the option to purchase a Predator Ridge golf membership at a great price so you can enjoy more of the game you love! The best part of this memebership? It can even be assigned to a family member, unlike others which have to stay with the lot. Live your best life being steps from the picturesque Predator Ridge golf course and a short drive to Sparkling Hill resort. Don't miss out on this exceptional opportunity – act now to secure this remarkable piece of land! (id:58842)

Property Information

Property Type
Commercial
SqUARE FOOTAGE
0
 sqft
Structure Type
Other
LAND SIZE
0.24 acres
Roof Type
Lot
Irregular lot size
SEWER Type
Municipal sewage system
Parking Spots
0
stories
Floor Type

More Information

Security
View
Mountain view, Valley view, View (panoramic)
Parking
Exterior
Community
Pets Allowed, Rentals Allowed
Common inTEREST
Freehold
Listing Key
28705413
MLS ID
10358640
listing Office
listing Office key
163499
0
Beds
0
Baths
$
595000

Virtual Tour

Map

Map

can help you buy this property.

Thank you! Your submission has been received!
Oops! Something went wrong while submitting the form.

Curtis Gedig

can help you buy this property.

Thank you! Your submission has been received!
Oops! Something went wrong while submitting the form.