2550 Hollywood Road N Unit# 143

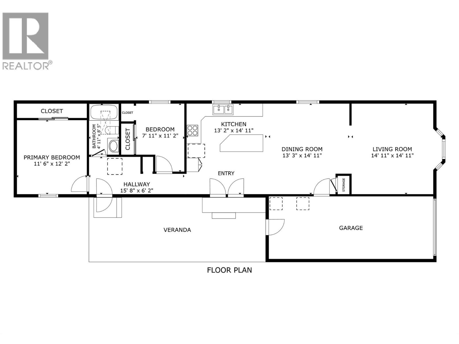
*** OPEN HOUSE SUNDAY 1st February 2026 1-3PM *** A fantastic opportunity for first-time buyers, investors or families looking to enter the market in the desirable College Heights location. This well-appointed home offers two bedrooms and one bathroom with an open-concept living area featuring a bay window that fills the space with natural light. The generous dining area flows seamlessly into the open-plan kitchen. Additional features include forced-air heating with central air conditioning, Underground irrigation, central vacuum rough-in, an all-in-one washer and dryer, vaulted 9-foot ceilings and a skylight in the bathroom. Step outside to a large, private patio and garden area, perfect for relaxing or entertaining. The fully fenced yard offers excellent privacy, with ample garden space for flowers, vegetables, or outdoor enjoyment, and includes a hot tub for year-round use. Parking is well accommodated with two driveway spaces plus a single-car garage. Enjoy no pet restrictions and a low monthly bare land strata fee of just $145. Conveniently tucked away near the UBC Okanagan, KGH airport and local amenities. Outside, this home offers beautiful mountain views and stunning Okanagan sunsets. A great alternative to renting, own your own home today! (id:58842)

Property Information

Property Type
Residential
SqUARE FOOTAGE
1071
 sqft
Structure Type
House
LAND SIZE
0.1 acres
Roof Type
Asphalt shingle
Lot
SEWER Type
Municipal sewage system
Parking Spots
3
stories
1.0
Floor Type

More Information

Security
View
Parking
Attached Garage
Exterior
Vinyl siding
Community
Family Oriented, Pets Allowed
Common inTEREST
Freehold
Listing Key
29283789
MLS ID
10373190
listing Office
listing Office key
61706
2
Beds
1
Baths
$
545000

Virtual Tour

Map

Map

can help you buy this property.

Thank you! Your submission has been received!
Oops! Something went wrong while submitting the form.

Roma Niessen

can help you buy this property.

Thank you! Your submission has been received!
Oops! Something went wrong while submitting the form.