2527 Pinnacle Ridge Drive

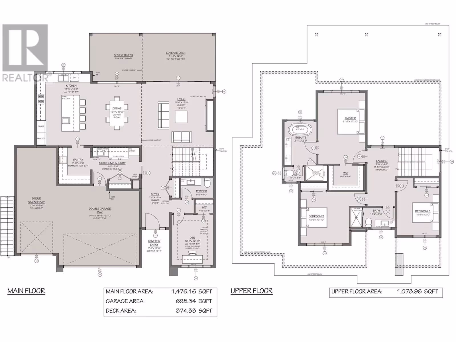
Welcome to 2527 Pinnacle Ridge Drive in beautiful West Kelowna, BC. This stunning 4,135 sq ft home offers luxury living with a modern, functional floor plan and exceptional attention to detail. Featuring a spacious 3-car garage plus a tandem bay, this home includes a one-bedroom legal suite—perfect for guests or rental income. Built to exceed current code standards, it’s also energy-efficient, using 40% less energy than the average new home (EnerGuide™ rated). Enjoy a large backyard with a private pool complete with an auto-cover, and take in the breathtaking lake and mountain views. Located on a quiet, no-through road just 5 minutes from groceries, schools, and gyms, this property offers both privacy and convenience. Built by award-winning Operon Homes, a licensed BC builder and member of the Canadian Home Builders Association, this home comes with a New Home Warranty (PHW) for peace of mind. Don't miss this rare opportunity to own a high-performance, thoughtfully designed home. (id:58842)

Property Information

Property Type
Residential
SqUARE FOOTAGE
4135
 sqft
Structure Type
House
LAND SIZE
0.19 acres
Roof Type
Other
Lot
Private setting, Central island, Balcony
SEWER Type
Municipal sewage system
Parking Spots
7
stories
3.0
Floor Type
Tile, Hardwood, Vinyl

More Information

Security
Smoke Detector Only
View
City view, Mountain view, View (panoramic)
Parking
Attached Garage, RV, Oversize, See Remarks
Exterior
Concrete, Stone
Community
Family Oriented
Common inTEREST
Freehold
Listing Key
28589341
MLS ID
10355190
listing Office
listing Office key
300043
5
Beds
5
Baths
$
1890000

Virtual Tour

Map

Map

can help you buy this property.

Thank you! Your submission has been received!
Oops! Something went wrong while submitting the form.

Ellen Churchill

can help you buy this property.

Thank you! Your submission has been received!
Oops! Something went wrong while submitting the form.