250 Husch Road

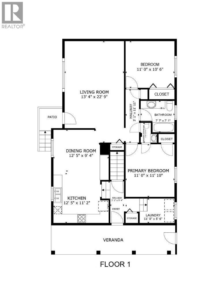
Welcome to 250 Husch Road, a warm and inviting single family home located in the heart of Rutland, one of Kelowna’s most convenient and family oriented neighbourhoods. This beautiful residence offers 4 spacious bedrooms and a functional layout perfect for growing families, or investors looking for strong rental potential. Set on a generously sized lot, the home features great curb appeal with a classic rancher design, a covered front porch, and mature landscaping. Inside, large windows bring in natural light throughout the living areas, creating a bright and comfortable atmosphere. The practical floor plan offers easy one level living, with additional potential in the lower level for storage, recreation, or future updates. Outside, the property includes ample yard space ideal for gardening, play, or outdoor entertaining. A covered carport provides convenient parking, while the driveway offers additional space for multiple vehicles. Located steps from schools, parks, transit, shopping, and all the amenities of Rutland, this home provides exceptional value in a rapidly growing area of Kelowna. Whether you're looking to move right in or add your personal touch, 250 Husch Road is a solid opportunity in a fantastic neighbourhood. (id:58842)

Property Information

Property Type
Residential
SqUARE FOOTAGE
2310
 sqft
Structure Type
House
LAND SIZE
0.21 acres
Roof Type
Lot
SEWER Type
Septic tank
Parking Spots
0
stories
2.0
Floor Type

More Information

Security
View
Parking
Carport
Exterior
Community
Common inTEREST
Freehold
Listing Key
29139712
MLS ID
10369846
listing Office
Century 21 Assurance Realty Ltd
listing Office key
61706
4
Beds
3
Baths
$
745000

Virtual Tour

Map

Map

can help you buy this property.

Thank you! Your submission has been received!
Oops! Something went wrong while submitting the form.

Robert A. Wood

can help you buy this property.

Thank you! Your submission has been received!
Oops! Something went wrong while submitting the form.