1850 Shannon Lake Road Unit# 109

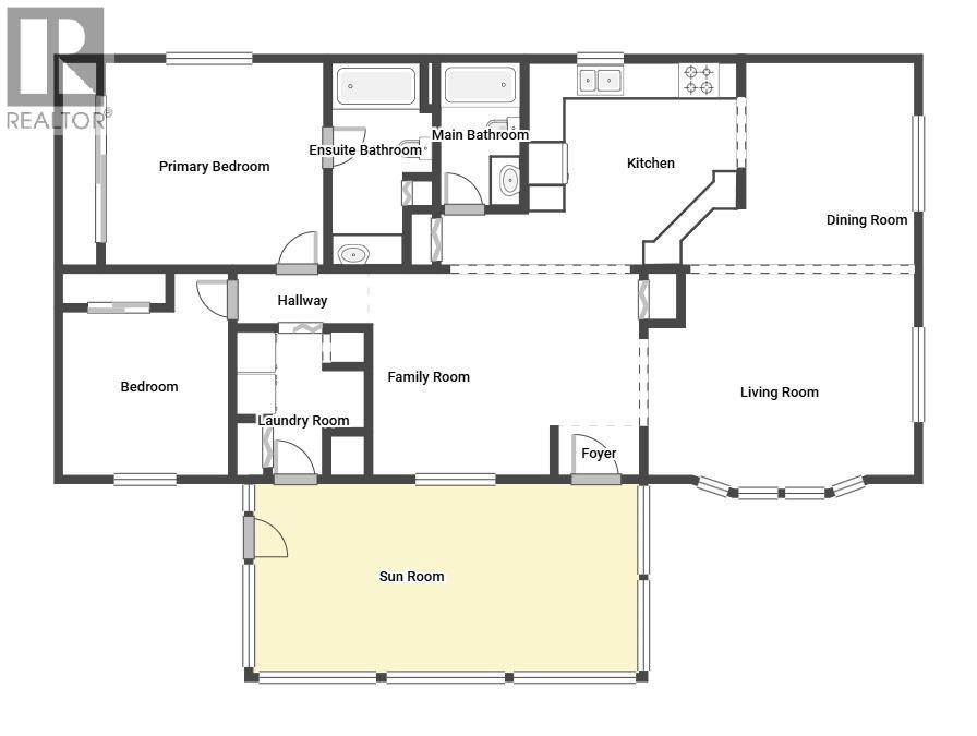
Welcome to this beautifully updated home in the desirable Shannon Lake community of Crystal Springs. This well-maintained home has seen numerous upgrades, offering comfort, style, and peace of mind for years to come. Major mechanical improvements include Poly-B plumbing removal and replacement with PEX, as was as the furnace (2015) and AC (2016). The home’s exterior has also been thoughtfully updated with a new roof (2024), new skirting (2023), and a new skylight (2024) that enhances natural light inside the home. Step inside to find new engineered hardwood flooring installed throughout most of the home in 2025, creating a modern and cohesive feel. The kitchen was refreshed in 2021 with updated countertops and a stylish backsplash, offering a functional and attractive space for cooking and entertaining. Enjoy outdoor living on the large front deck, now fully enclosed, providing additional versatile space that can be enjoyed in multiple seasons. With extensive updates already completed, this move-in-ready home offers excellent value and low-maintenance living in a welcoming neighbourhood close to Shannon Lake amenities, golf, parks, and shopping. Residents of Crystal Springs enjoy a welcoming, well-managed community with access to a clubhouse, guest suites, and beautifully landscaped grounds. (id:58842)

Property Information

Property Type
Residential
SqUARE FOOTAGE
1352
 sqft
Structure Type
Manufactured Home
LAND SIZE
Roof Type
Asphalt shingle
Lot
SEWER Type
Municipal sewage system
Parking Spots
0
stories
1.0
Floor Type
Hardwood, Vinyl

More Information

Security
View
Parking
Carport
Exterior
Community
Seniors Oriented
Common inTEREST
Leasehold
Listing Key
29448356
MLS ID
10378719
listing Office
listing Office key
47837
2
Beds
2
Baths
$
384900

Virtual Tour

Map

Map

can help you buy this property.

Thank you! Your submission has been received!
Oops! Something went wrong while submitting the form.

Roma Niessen

can help you buy this property.

Thank you! Your submission has been received!
Oops! Something went wrong while submitting the form.