17587 Sanborn Street

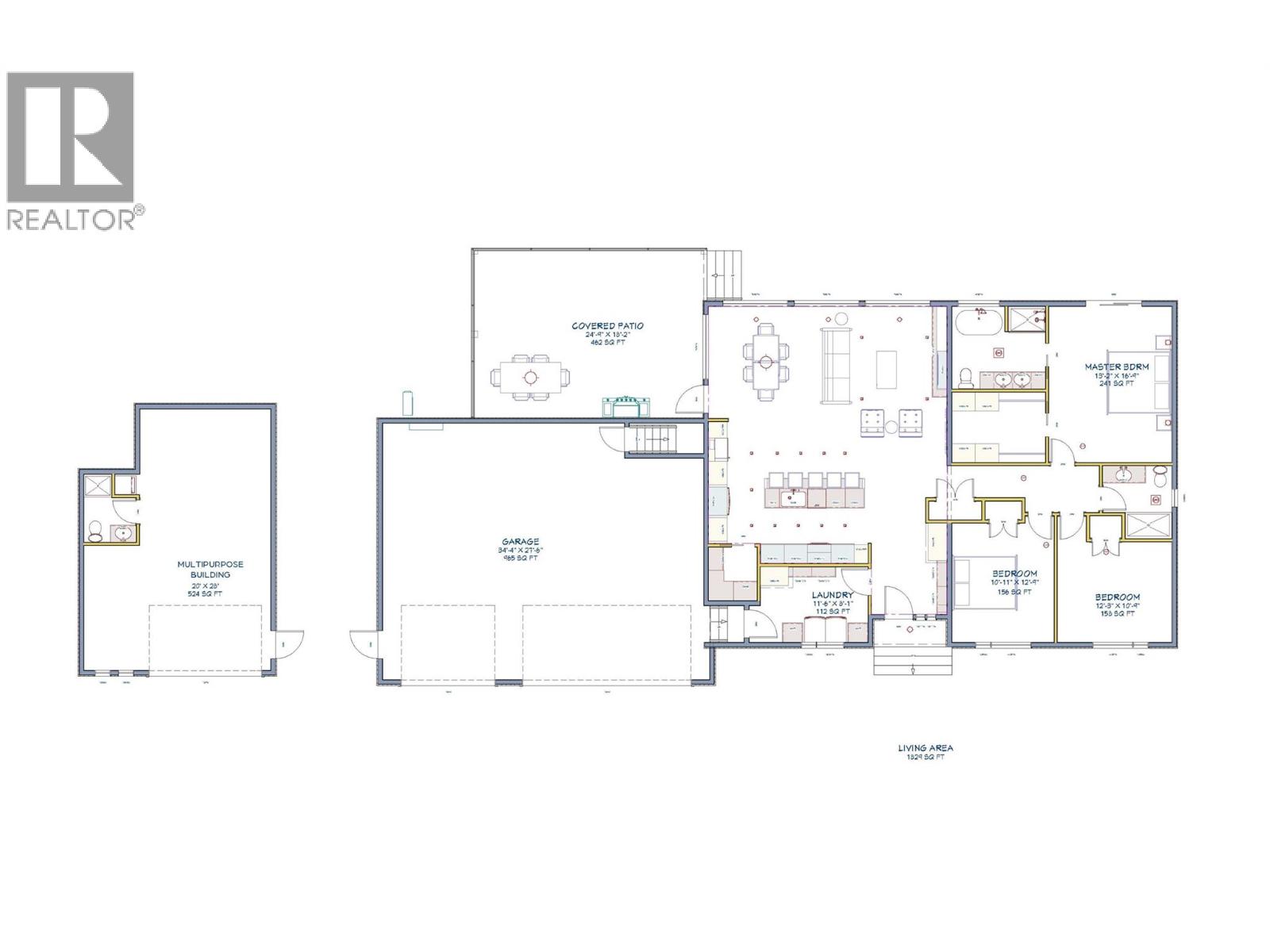
Currently under construction in Hunters Hill, Summerland BC, this new home package offers a rare combination anchored by a premium 154 ft wide lot with unobstructed lake and city views — a sprawling rancher, oversized triple garage, 550 sq ft detached multipurpose building, and dedicated RV parking. The main home hosts 3 bedrooms, including a luxury primary suite with a private 5-piece ensuite featuring a standalone tub, custom tiled shower, walk-in closet with millwork and seamless access to the outdoor decks. The great room lives up to its name — vaulted ceilings and a wall of windows frame the incredible views, enjoyed from the open, modern, and luxurious kitchen with walk-in pantry, sit-up island, and the generous living and dining area warmed up by a custom gas fireplace. A 462 sq ft covered patio extends from the great room, expanding your living space with the added privacy of no neighbour to the north. The laundry/mudroom is fully built out with cabinetry and has access from the garage and home. The triple car garage spans 1,000 sq ft with access to a 5 ft crawl space — great additional storage. The detached building will be prepped and ready to create whatever your needs call for — art studio, toy storage, or a future carriage home. Landscaping is included for the large, flat yard — a fitting finish to this exceptional offering. The builder is open to customization with an in-house interior designer, depending on the current stage of construction. (id:58842)

Property Information

Property Type
Residential
SqUARE FOOTAGE
1900
 sqft
Structure Type
House
LAND SIZE
0.37 acres
Roof Type
Other
Lot
Level lot, Corner Site
SEWER Type
Municipal sewage system
Parking Spots
3
stories
1.0
Floor Type

More Information

Security
View
City view, Lake view, Mountain view, Valley view, View (panoramic)
Parking
Attached Garage
Exterior
Other
Community
Pets Allowed
Common inTEREST
Freehold
Listing Key
29551252
MLS ID
10381892
listing Office
listing Office key
300871
3
Beds
2
Baths
$
1599000

Virtual Tour

Map

Map

can help you buy this property.

Thank you! Your submission has been received!
Oops! Something went wrong while submitting the form.

Cosette Kempston

can help you buy this property.

Thank you! Your submission has been received!
Oops! Something went wrong while submitting the form.