148 Summerhill Place

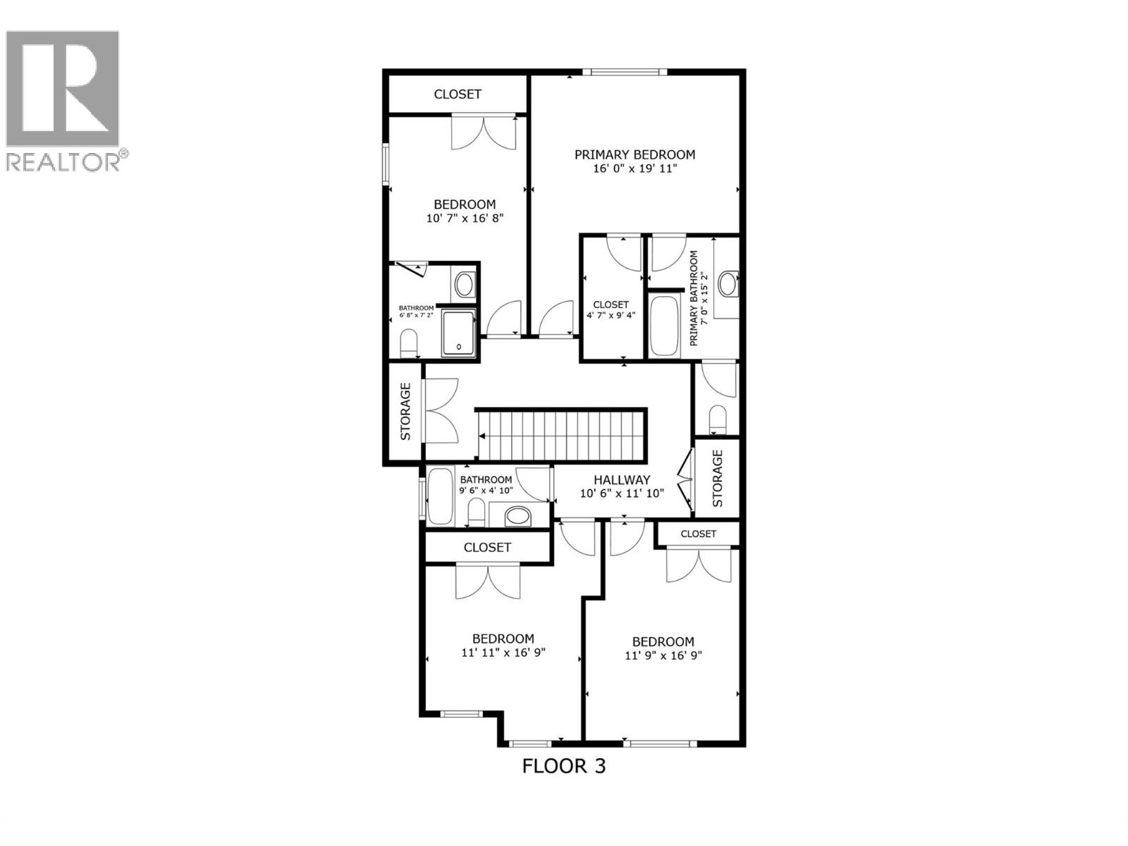
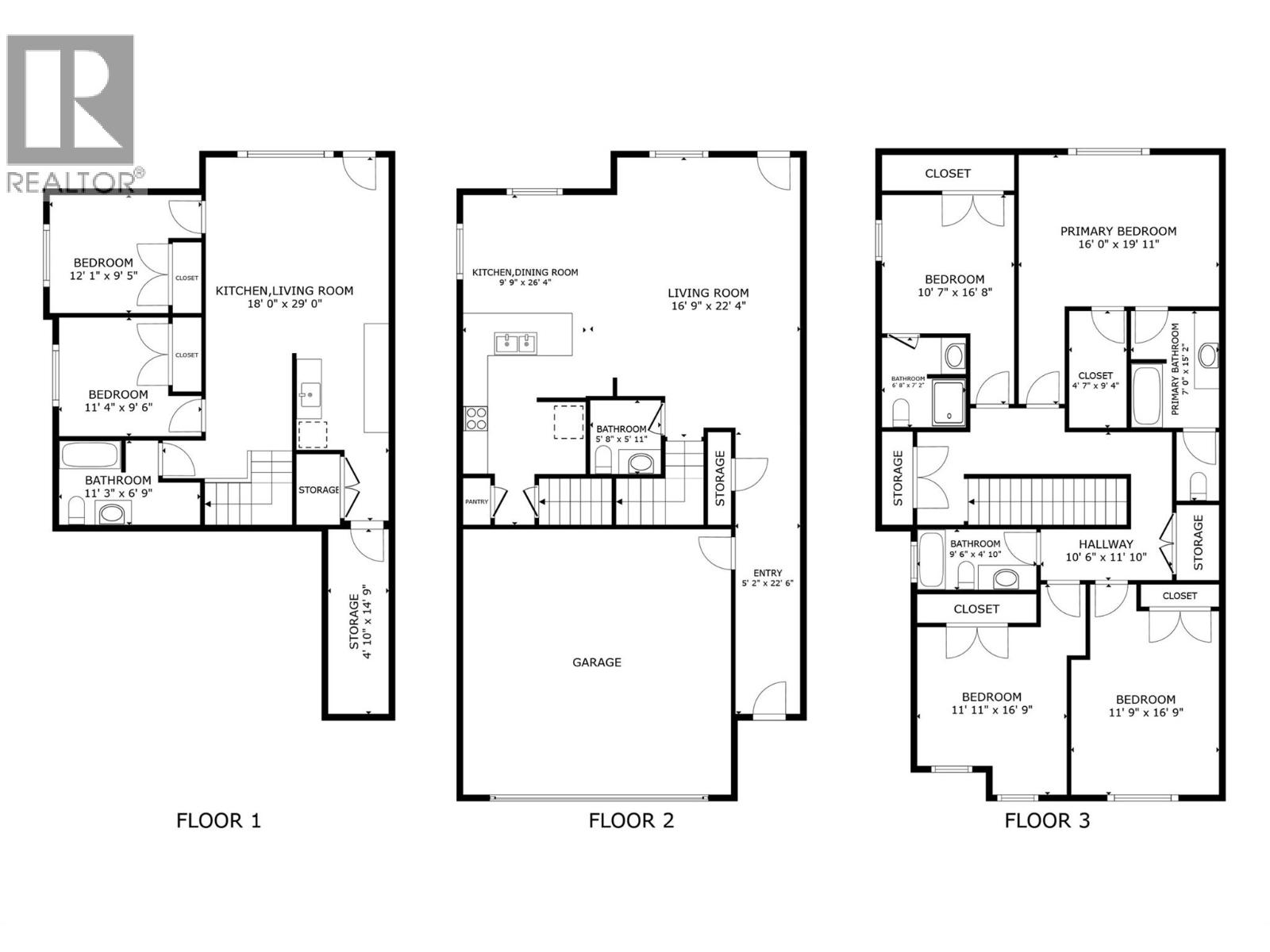
Welcome to 148 Summerhill Place, a beautifully designed 6-bedroom, 5-bathroom duplex offering over 3,000 sq ft of versatile living space in the highly desirable North Glenmore neighbourhood. Nestled on a quiet cul-de-sac, this home is ideal for families, investors, or those seeking comfortable multi-generational living. A thoughtfully planned layout features four spacious bedrooms on the top floor, creating the perfect family-friendly retreat. The main level boasts a bright, open-concept design anchored by an electric fireplace with a custom built-in entertainment unit, seamlessly connecting the living space to a large deck off the living room—ideal for entertaining or unwinding in a peaceful setting. The lower level includes a self-contained 2-bedroom in-law suite with a separate entrance, kitchenette, and covered patio , offering excellent flexibility for extended family or added value. Parking is abundant with approximately four open parking spaces plus a single-car garage, a rare find in this area. Adding to the appeal, the other half of the duplex is also available, presenting a unique opportunity for investors or multi-generational families to secure side-by-side living in one of Kelowna’s most sought-after communities. Close to schools, parks, and everyday amenities, this is North Glenmore living at its finest. All measurements and sizes are approximate; actual dimensions may vary and should be verified by the buyer if deemed important. (id:58842)

Property Information

Property Type
Residential
SqUARE FOOTAGE
2950
 sqft
Structure Type
Duplex
LAND SIZE
0.08 acres
Roof Type
Asphalt shingle
Lot
Central island, Balcony
SEWER Type
Municipal sewage system
Parking Spots
3
stories
2.0
Floor Type
Tile, Laminate, Carpeted

More Information

Security
View
Parking
Attached Garage, Additional Parking
Exterior
Stucco
Community
Pets Allowed
Common inTEREST
Freehold
Listing Key
29218030
MLS ID
10371576
listing Office
Century 21 Assurance Realty Ltd
listing Office key
61706
6
Beds
5
Baths
$
999000

Virtual Tour

Map

Map

can help you buy this property.

Thank you! Your submission has been received!
Oops! Something went wrong while submitting the form.

Marcelle Goldstein

can help you buy this property.

Thank you! Your submission has been received!
Oops! Something went wrong while submitting the form.