1463 Braemar Street

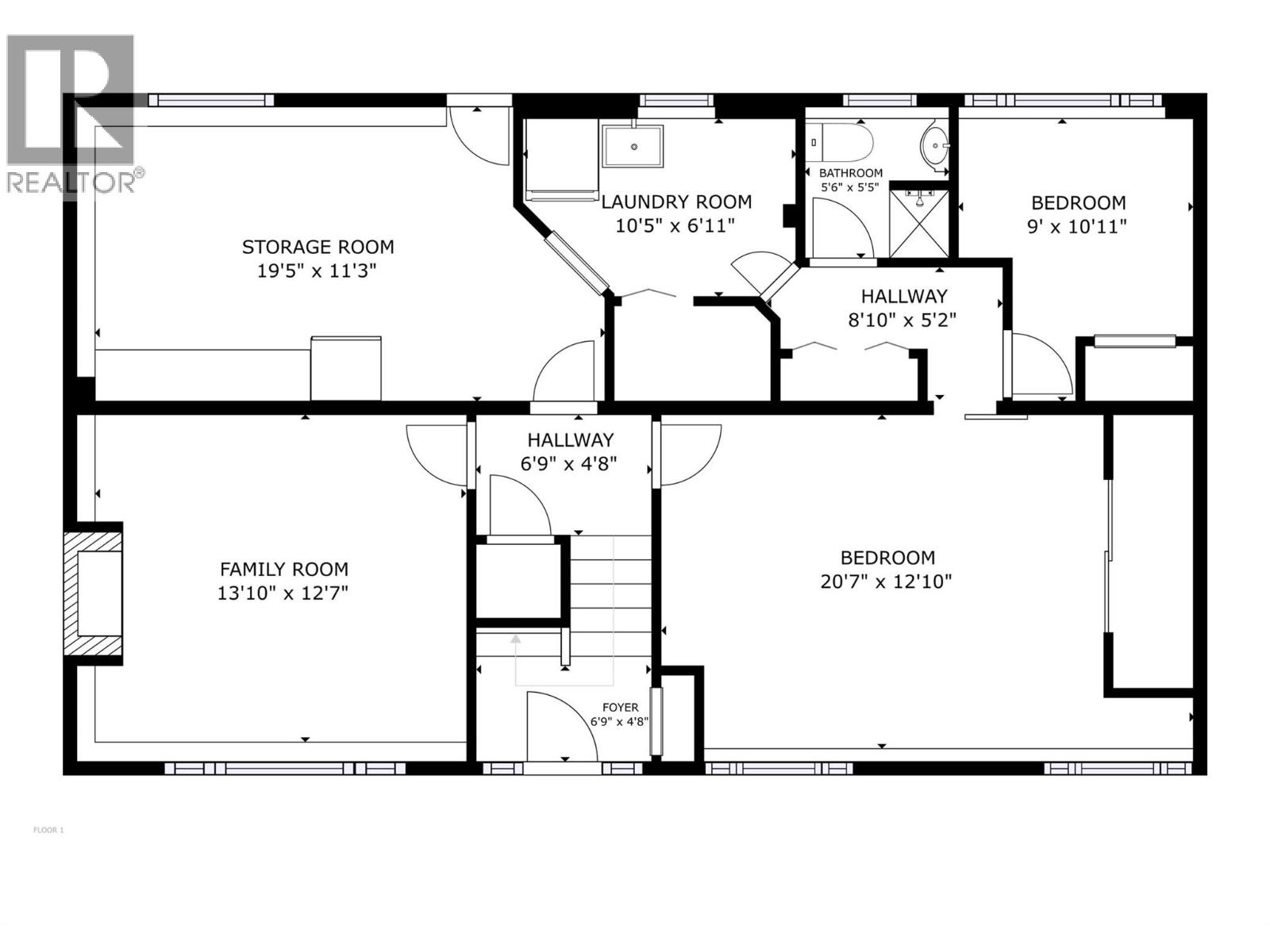
Bright & spacious 5-bedroom, 3-bathroom home in PRIME old Glenmore location! This home offers over 2200 square feet of comfortable living space, in a family area, just minutes from downtown, Okanagan Lake, shopping, schools & just steps from bike path, Apple Bowl stadium & bus stops. The main floor features an open-concept layout w/updated kitchen overlooking a generous, fully fenced backyard, perfect for entertaining & gardening. The inviting living room incl. new blinds & a cozy gas fireplace, while the adjacent dining area, w/french doors, leads to a sunroom offering serene mountain views. The main level also hosts three well-proportioned bdrms, incl. the primary bdrm w/modern barn door leading to an updated 2-piece ensuite. Downstairs, the home continues to impress w/newer flooring throughout. A large family room w/gas fireplace provides an ideal space for gatherings. The lower level also incl. a sizable storage/workshop/flex room w/direct access to the carport, a three-piece bathroom, a laundry area & two additional bdrms. Outside, the property boasts fantastic curb appeal with low maintenance front yard landscaping & a fully fenced peaceful backyard retreat w/irrigated green space & a new deck & patio area to enjoy. Room for carriage house or shop! Parking is ample w/single carport off laneway, two additional uncovered spots & plenty of street parking. Currently zoned MF1, w/future C-NHD designation providing future development opportunity. (id:58842)

Property Information

Property Type
Residential
SqUARE FOOTAGE
2255
 sqft
Structure Type
House
LAND SIZE
0.17 acres
Roof Type
Asphalt shingle
Lot
SEWER Type
Municipal sewage system
Parking Spots
4
stories
2.0
Floor Type
Tile, Laminate, Linoleum

More Information

Security
View
Mountain view
Parking
Additional Parking
Exterior
Vinyl siding
Community
Common inTEREST
Freehold
Listing Key
28866118
MLS ID
10362149
listing Office
listing Office key
61706
5
Beds
3
Baths
$
849900

Virtual Tour

Map

Map

can help you buy this property.

Thank you! Your submission has been received!
Oops! Something went wrong while submitting the form.

Larry Guilbault

can help you buy this property.

Thank you! Your submission has been received!
Oops! Something went wrong while submitting the form.