1435 Cara Glen Court Unit# 129

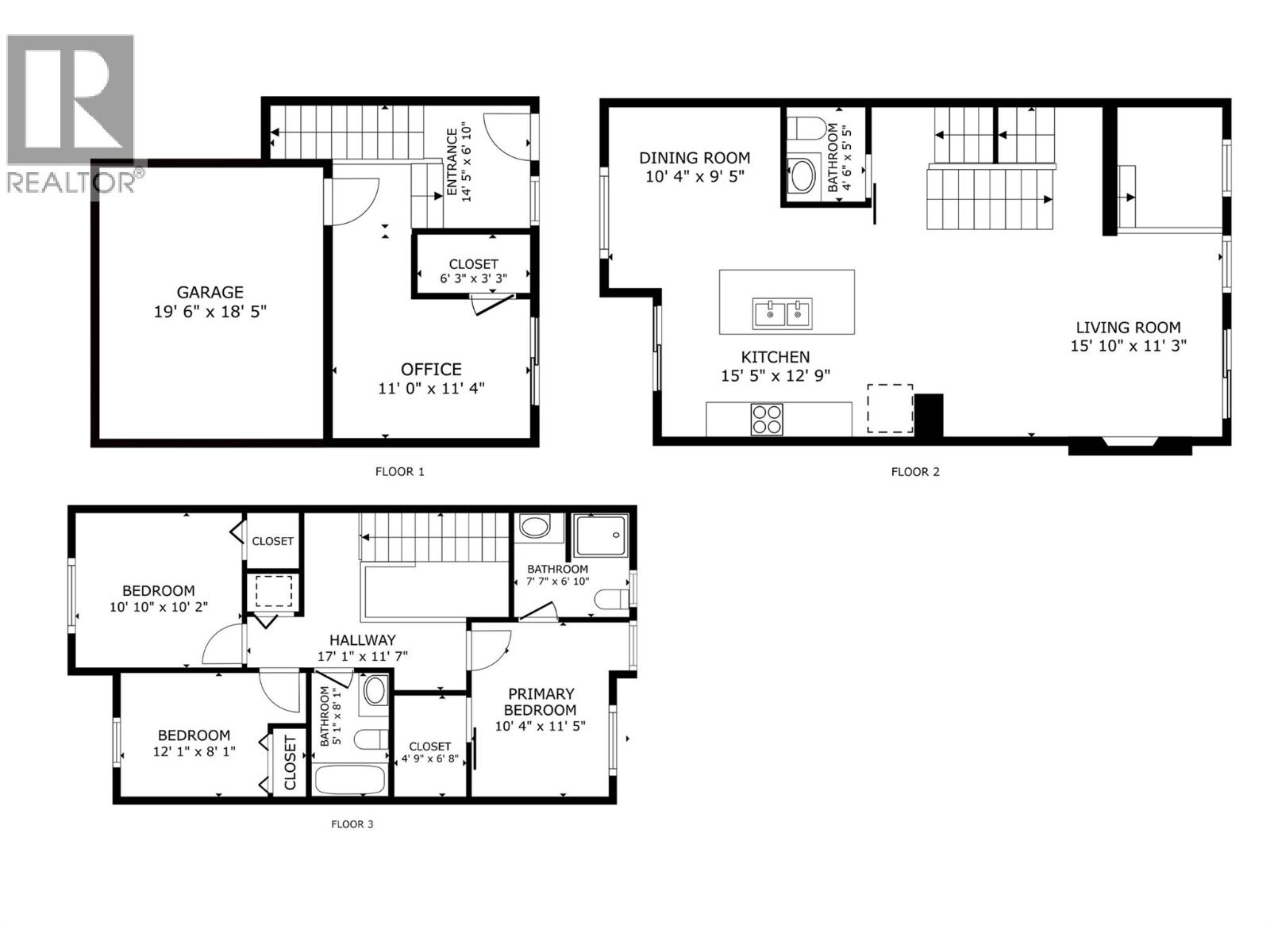
Tucked away in family-friendly Glenmore, this beautifully maintained three bedroom plus den, two and a half bath townhome offers the perfect blend of comfort, functionality, and lifestyle. Positioned away from Clifton and Cara Glen Court, this home enjoys a peaceful setting while backing directly onto the complex’s green space—ideal for relaxing, entertaining, or keeping an eye on the kids from your private patio, complete with a gas hookup. The thoughtfully designed layout features a bright multi-use flex room on the lower level—perfect as a home office, gym, or guest space—with large windows and direct access to the green area and entry. The main living area extends seamlessly to a covered deck and spacious terrace, creating a calm outdoor retreat. Upstairs, the main suite captures beautiful mountain views, adding to the home’s tranquil feel. Pride of ownership shines throughout—this four year-old home is in excellent condition, smoke-free and pet-free since new. A rare highlight is the oversized driveway with parking for two full-sized vehicles in addition to the double garage—an uncommon and highly convenient feature in the neighbourhood. An exceptional opportunity to own a quiet, well-located home in one of Kelowna's most desirable communities. Wonderful location! Only minutes from Costco, Orchard Park Shopping Centre, Downtown Kelowna, the Cultural District, Parks and Beaches, UBCO, the Airport, and more, but away from the hustle and bustle of town. (id:58842)

Property Information

Property Type
Residential
SqUARE FOOTAGE
1464
 sqft
Structure Type
Row / Townhouse
LAND SIZE
Roof Type
Lot
SEWER Type
Municipal sewage system
Parking Spots
4
stories
3.0
Floor Type

More Information

Security
View
Parking
Attached Garage, Additional Parking
Exterior
Community
Pet Restrictions
Common inTEREST
Condo/Strata
Listing Key
29519714
MLS ID
10380657
listing Office
listing Office key
61706
3
Beds
3
Baths
$
738000

Virtual Tour

Map

Map

can help you buy this property.

Thank you! Your submission has been received!
Oops! Something went wrong while submitting the form.

Dyan Broderick

can help you buy this property.

Thank you! Your submission has been received!
Oops! Something went wrong while submitting the form.