1359 Sutherland Avenue

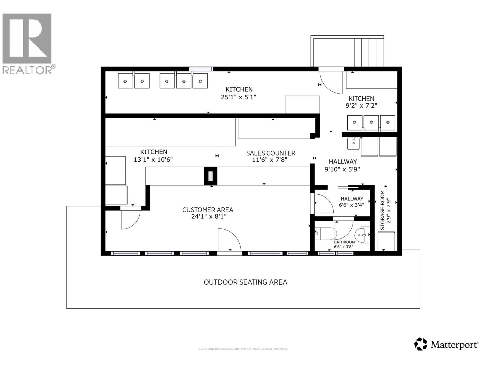
Outstanding opportunity to acquire the land, building and business of a local institution – Shady Rest British Fish & Chips. Located in the heart ofthe Capri-Landmark Urban Centre along Sutherland Ave, this iconic business has been at this location for almost 80 years and has a well-established & loyal client base. This is a turn-key operation as a fish & chips shop and includes all equipment. Lot is .05 acres located at theintersection of Sutherland Ave & Lindahl Street with a versatile 743 SF, single-storey structure. Long time, successful owner is offering to stayon and train in all aspects of the operation, if desired. This is an excellent opportunity for an entrepreneurial minded individual to take the reinsof a successful local business. (id:58842)

Property Information

Property Type
Commercial
SqUARE FOOTAGE
743
 sqft
Structure Type
Other
LAND SIZE
0.05 acres
Roof Type
Lot
SEWER Type
Parking Spots
0
stories
Floor Type

More Information

Security
View
Parking
Exterior
Community
Common inTEREST
Listing Key
29368399
MLS ID
10375982
listing Office
REMAX Kelowna
listing Office key
47837
0
Beds
0
Baths
$
490000

Virtual Tour

Map

Map

can help you buy this property.

Thank you! Your submission has been received!
Oops! Something went wrong while submitting the form.

Robert A. Wood

can help you buy this property.

Thank you! Your submission has been received!
Oops! Something went wrong while submitting the form.