13574 Moberly Road

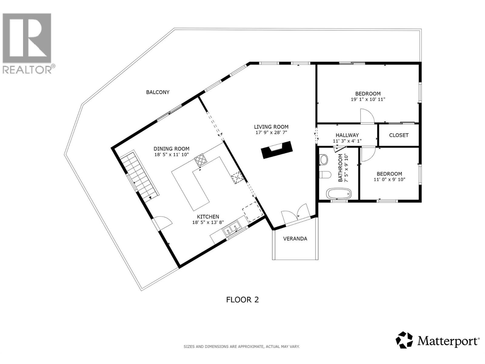
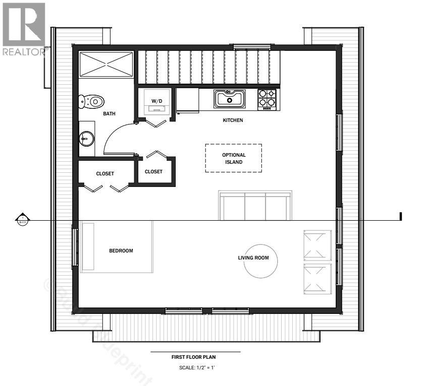
NEW DETACHED SHOP WITH SUITE INCLUDED (full build start to finish, see plans in photos). Step into the warmth and character of this authentic log home, perfectly perched to capture panoramic lake views from both decks. Enter through the double doors to vaulted ceilings framing the views and a floor-to-ceiling stone fireplace that makes the great room a showstopper. The updated kitchen features new countertops, appliances, and flooring, and the cozy dining space flows seamlessly into the living room. The primary bedroom opens directly onto the balcony, perfect for morning coffee with a view. Downstairs you’ll find a third bedroom (ensuite roughed in), a refreshed bathroom, and a family room where you can cozy up by the wood stove surrounded by cedar beams. This home is beautifully updated and move-in ready; at this price a new HVAC package is included, worth about $15,000. An attached woodshop offers space for creative projects, while abundant parking and a brand new 24x24 detached garage with an A-frame suite above are fully included in the purchase. Set within a region known for world-class wineries and luxury estates, this property also includes a large unused parcel across the road ready for your big ideas. A true blend of craftsmanship, warmth, and Okanagan lifestyle; your Carr’s Landing sanctuary awaits. (id:58842)

Property Information

Property Type
Residential
SqUARE FOOTAGE
2958
 sqft
Structure Type
House
LAND SIZE
1.08 acres
Roof Type
Asphalt shingle
Lot
SEWER Type
Septic tank
Parking Spots
8
stories
2.0
Floor Type

More Information

Security
View
Lake view, Mountain view
Parking
Exterior
Community
Common inTEREST
Freehold
Listing Key
29076885
MLS ID
10367641
listing Office
listing Office key
163499
3
Beds
2
Baths
$
1225000

Virtual Tour

Map

Map

can help you buy this property.

Thank you! Your submission has been received!
Oops! Something went wrong while submitting the form.

David Delorme

can help you buy this property.

Thank you! Your submission has been received!
Oops! Something went wrong while submitting the form.