13098 Shoreline Way Unit# 38

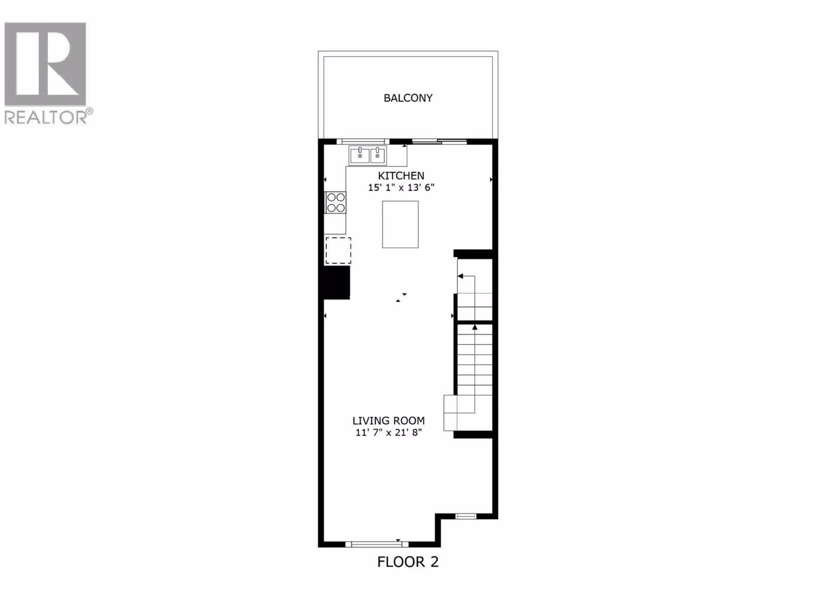
Welcome to #38 13098 Shoreline Way! Located in The Apex at the Lakes—a vibrant community in the heart of Lake Country. This beautifully designed 3-bedroom + den, 3-bathroom townhouse offers over 1,400 sq. ft. of stylish living across three levels, combining modern comfort with everyday convenience. The entry level features a private bedroom and full bath, perfect for guests, teenagers, or a dedicated office space. Upstairs, the main floor showcases a bright and airy open-concept layout, where the living room, dining area, and sleek kitchen flow seamlessly together, creating the ideal setting for entertaining and family living. The top floor hosts two additional bedrooms plus a versatile den, including a spacious primary suite with its own ensuite bath. With a single-car garage and extra parking, you’ll have room for all of life’s essentials. Step outside your door and enjoy a family-friendly neighbourhood with parks, walking trails, and tennis/basketball courts. Just minutes away are UBC Okanagan, world-class golf, shopping, lakes, and beaches, everything that makes the Okanagan lifestyle so desirable. This move-in ready home offers the perfect balance of space, location, and lifestyle—whether you’re a first-time buyer, young family, or investor. (id:58842)

Property Information

Property Type
Residential
SqUARE FOOTAGE
1347
 sqft
Structure Type
Row / Townhouse
LAND SIZE
Roof Type
Asphalt shingle
Lot
SEWER Type
Municipal sewage system
Parking Spots
2
stories
3.0
Floor Type
Laminate, Carpeted, Ceramic Tile

More Information

Security
View
Parking
Attached Garage
Exterior
Brick, Other
Community
Common inTEREST
Condo/Strata
Listing Key
28877695
MLS ID
10362834
listing Office
listing Office key
61706
3
Beds
3
Baths
$
650000

Virtual Tour

Map

Map

can help you buy this property.

Thank you! Your submission has been received!
Oops! Something went wrong while submitting the form.

Joe White

can help you buy this property.

Thank you! Your submission has been received!
Oops! Something went wrong while submitting the form.