1205 Loseth Drive

Priced below Assessed Value! Welcome to your dream family upgrade—this spacious 3,400+ sq ft home offers room for everyone, plus a mortgage helper that doesn’t cramp your style. With a legal suite that occupies just half the basement, you keep the lion’s share of the space for living, lounging, and letting the kids take over the rec room. Step out onto the large covered patio and soak in sweeping valley views—a perfect spot for morning coffees or post-bedtime wind-downs. Inside, you'll find a well-maintained, move-in-ready home with generous living spaces, 4 bedrooms, and 4 bathrooms that make daily life both easy and enjoyable. Tucked into a quiet, family-friendly neighbourhood just five minutes from shops, schools, and services, this home also gives you quick access to scenic hiking trails and peaceful surroundings. It’s the rare combo of practicality and lifestyle—perfect for the move-up buyer who wants space, serenity, and smart value. **Seller is motivated, bring your offers!** (id:58842)

Property Information

Property Type
Residential
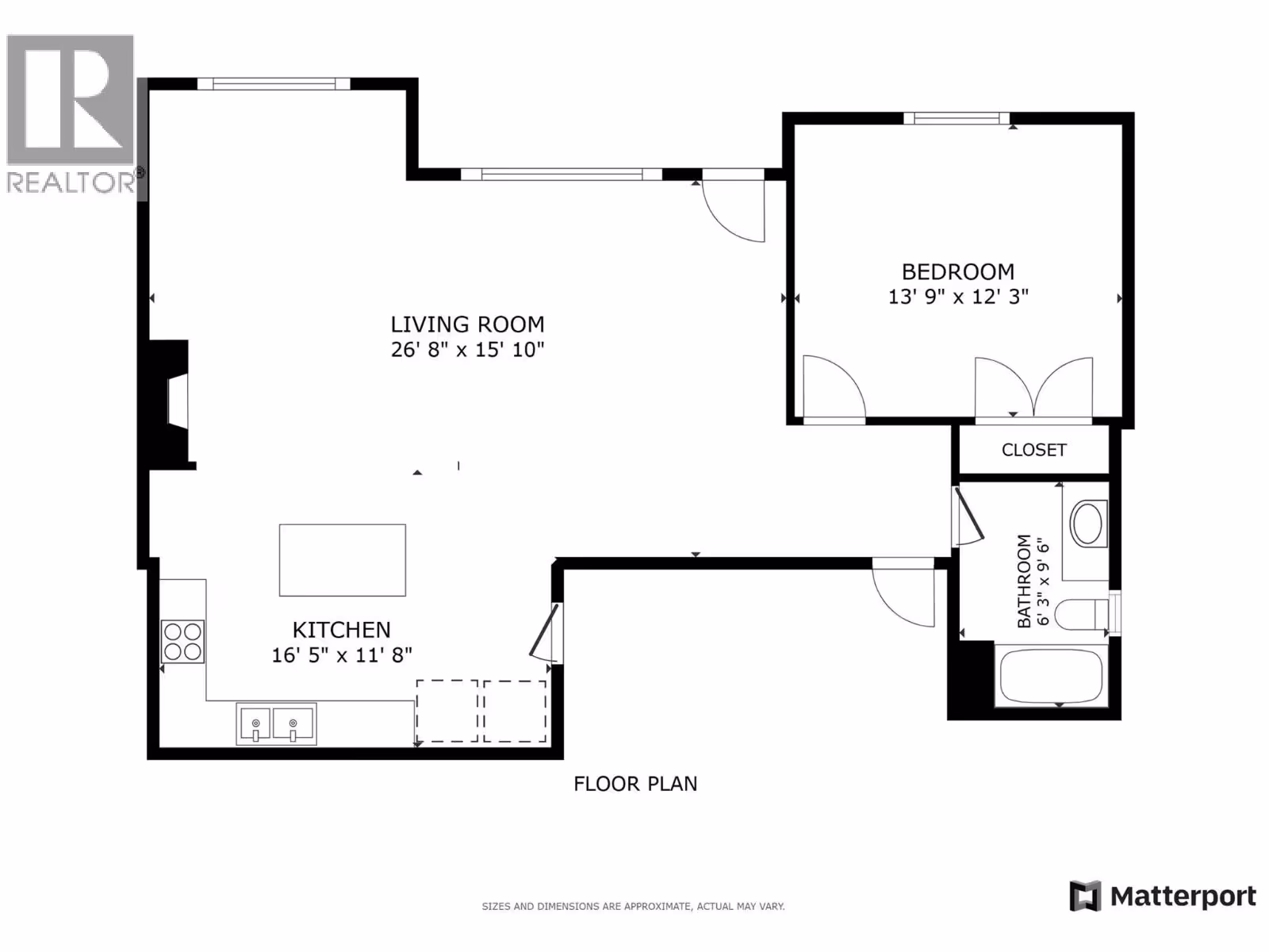
SqUARE FOOTAGE
3447
 sqft
Structure Type
House
LAND SIZE
0.16 acres
Roof Type
Asphalt shingle
Lot
Central island, One Balcony
SEWER Type
Municipal sewage system
Parking Spots
4
stories
2.0
Floor Type
Tile, Hardwood, Carpeted

More Information

Security
View
Mountain view, Valley view, View (panoramic)
Parking
Attached Garage, Heated Garage
Exterior
Stone, Stucco
Community
Common inTEREST
Freehold
Listing Key
28958167
MLS ID
10364971
listing Office
listing Office key
163499
4
Beds
4
Baths
$
1115000

Virtual Tour

Map

Map

can help you buy this property.

Thank you! Your submission has been received!
Oops! Something went wrong while submitting the form.

Walt Reglin

can help you buy this property.

Thank you! Your submission has been received!
Oops! Something went wrong while submitting the form.