1181 Sunset Drive Unit# 2602

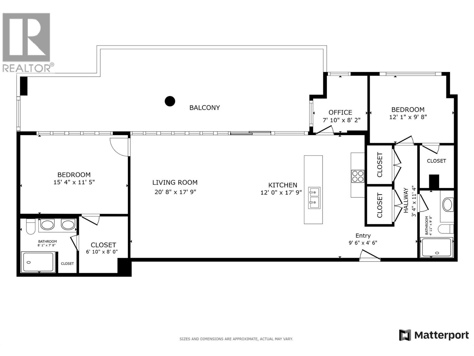
Sub-Penthouse | 2 Bedrooms + Den | 26th Floor | One Water Experience stunning panoramic vistas of Kelowna’s skyline, Lake Okanagan, and the scenic mountains from the upper levels of One Water Street! This spacious 2-bedroom plus den sub-penthouse features an open-concept layout with 10'5"" ceilings and high-end finishes throughout. The residence boasts a sleek selection of stainless steel appliances, including a Control4 smart home package, and an expansive outdoor patio perfect for enjoying the breathtaking surroundings. The modern kitchen is equipped with large quartz countertops, a waterfall island, a Sub-Zero fridge, Wolf gas cooktop, and built-in wall oven—ideal for entertaining while taking in the remarkable city and lake views through floor-to-ceiling windows. The adjacent living area is surrounded by windows and provides access to the large covered deck, creating a seamless indoor-outdoor living experience. The master suite features a luxurious spa-inspired ensuite and walk-in closet. What sets this unit apart is the 2 side-by-side parking spots and huge storage locker. Within this resort-like community, residents enjoy a range of amenities including BBQ and firepit enclaves, an oversized hot tub, swimming pools, a multi-purpose entertainment room, gym, a dog park, and more. Living on one of the best streets in Kelowna, you’re across the street from our world-famous lake and beaches, plus some of the best cafes, restaurants, and shops the Okanagan has to offer! (id:58842)

Property Information

Property Type
Residential
SqUARE FOOTAGE
1406
 sqft
Structure Type
Apartment
LAND SIZE
None None
Roof Type
Tar & gravel
Lot
Private setting, Central island, One Balcony
SEWER Type
Municipal sewage system
Parking Spots
2
stories
1.0
Floor Type
Tile

More Information

Security
Sprinkler System-Fire
View
City view, Lake view, Mountain view, View (panoramic)
Parking
Underground, Parkade, Heated Garage
Exterior
Stucco
Community
Family Oriented, Recreational Facilities, Rentals Allowed
Common inTEREST
Condo/Strata
Listing Key
28667756
MLS ID
10357058
listing Office
listing Office key
163499
2
Beds
2
Baths
$
1700000

Virtual Tour

Map

Map

can help you buy this property.

Thank you! Your submission has been received!
Oops! Something went wrong while submitting the form.

Curtis Gedig

can help you buy this property.

Thank you! Your submission has been received!
Oops! Something went wrong while submitting the form.