1050 Ledgeview Court

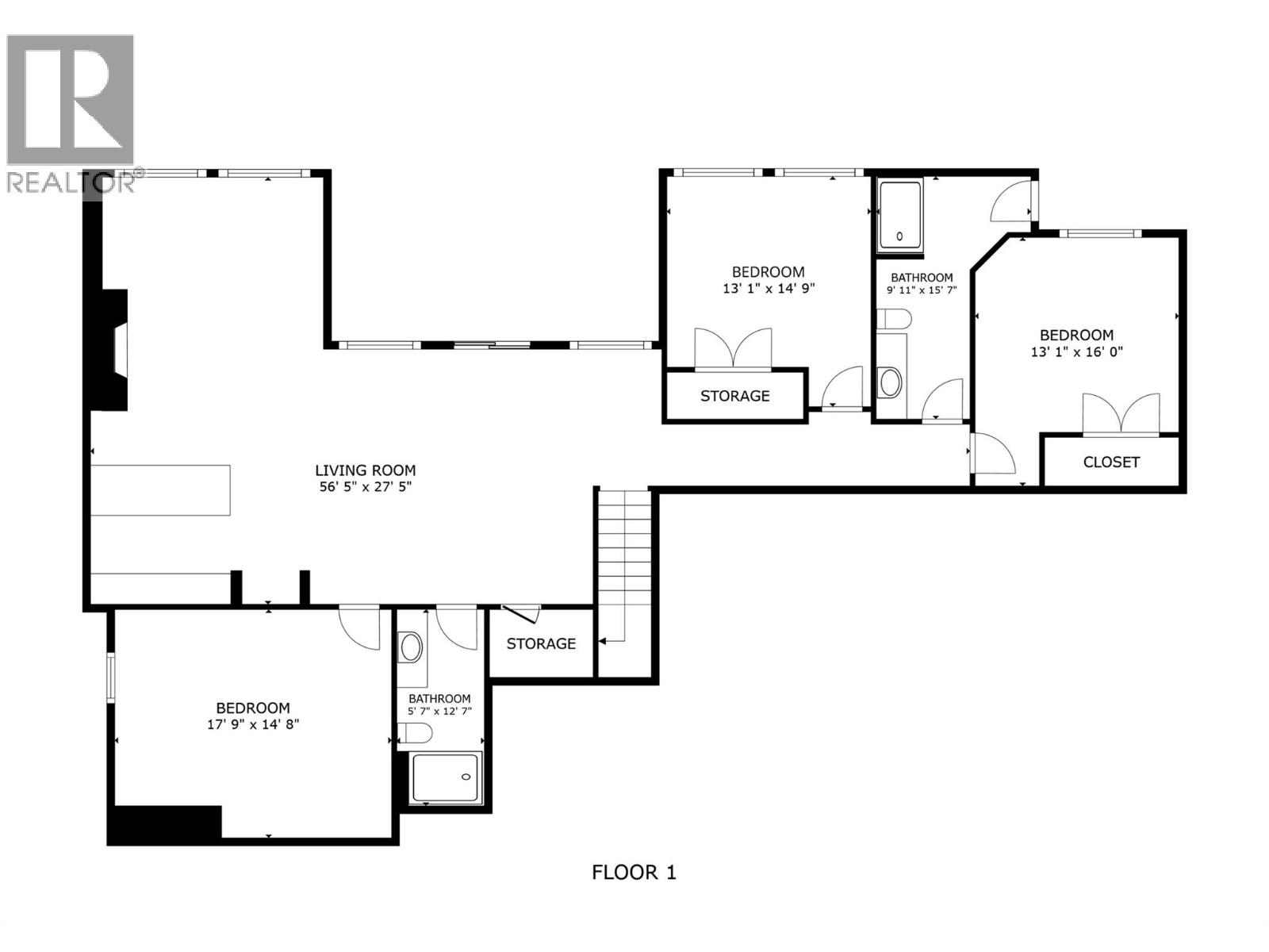
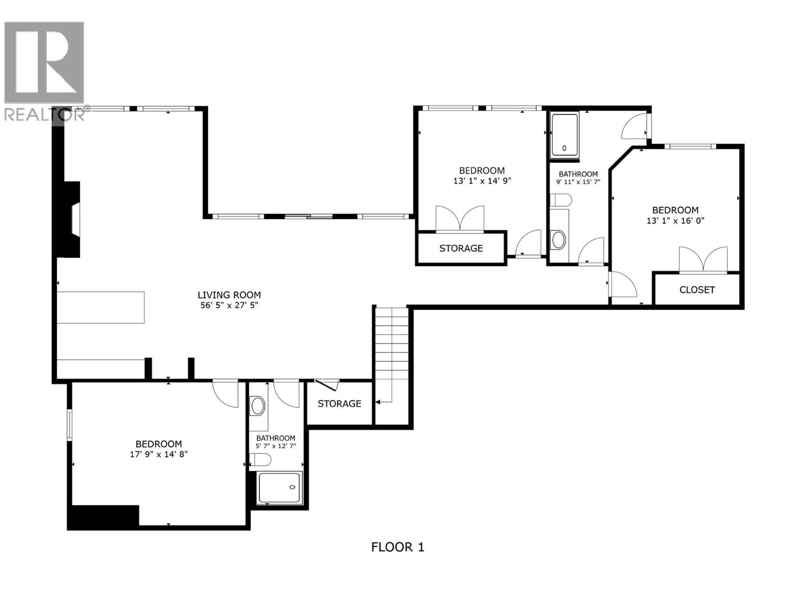
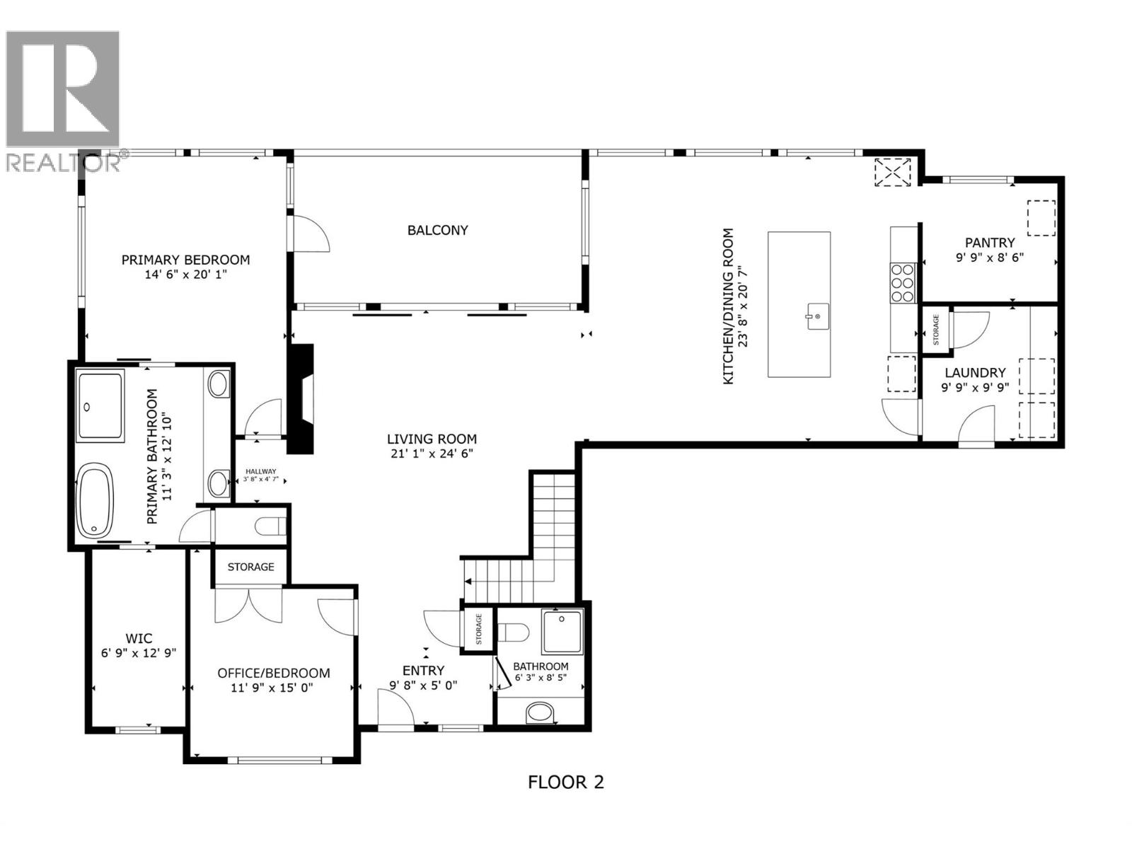
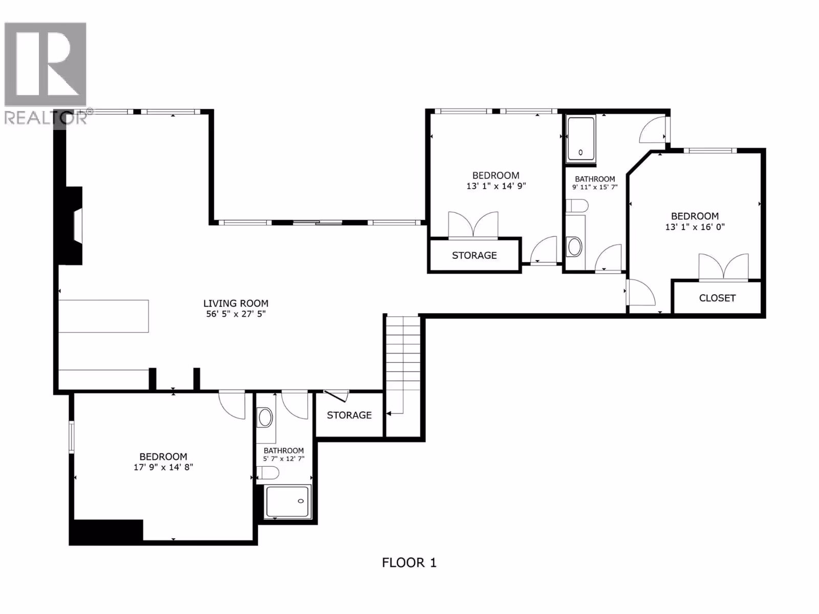
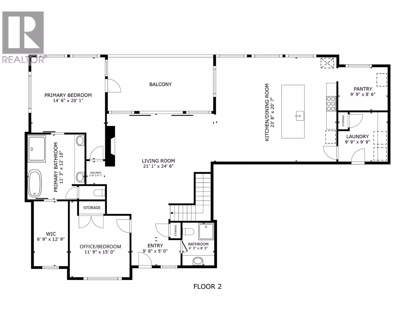
Welcome to this stunning Modern Mountainside walk out rancher that perfectly blends luxury and comfort. Perched above the valley and lake, the home captures breathtaking views through oversized windows and doors, filling every space with natural light. As you walk through the front door you are immediately drawn to the expansive view with 13 foot ceilings and the over sized covered front balcony, perfect for taking in the entire Lake and Valley Views. The chef’s kitchen boasts top-of-the-line appliances, while soaring ceilings create an airy elegance throughout the main level. The primary suite is a private retreat with a full spa-like ensuite, complete with a soaker tub, steam shower, and direct access to the deck. The lower level has 10 foot ceilings and is designed for entertaining with three large bedrooms, one which is also set up as a theatre room, two full baths (including pool access), wet bar, fireplace, Built In Sound System through out the home and a spacious games and living area. Expansive covered outdoor spaces and a 16x32 ft saltwater pool with auto-cover invite year-round enjoyment. Pre-wired for Hot tub. A 3-bay garage adds functionality, while the location offers unmatched convenience close to schools, trails, and shopping. This home is a rare opportunity to experience elevated living with comfort, privacy, and endless views. Measurements are approximate. (id:58842)

Property Information

Property Type
Residential
SqUARE FOOTAGE
4089
 sqft
Structure Type
House
LAND SIZE
0.33 acres
Roof Type
Asphalt shingle
Lot
Cul-de-sac, Central island
SEWER Type
Municipal sewage system
Parking Spots
3
stories
2.0
Floor Type
Tile, Hardwood, Carpeted

More Information

Security
Security system, Sprinkler System-Fire, Smoke Detector Only
View
City view, Lake view, Mountain view, Valley view, View (panoramic)
Parking
Attached Garage, Additional Parking
Exterior
Stone, Stucco
Community
Family Oriented
Common inTEREST
Freehold
Listing Key
29369841
MLS ID
10376086
listing Office
Century 21 Assurance Realty Ltd
listing Office key
61706
5
Beds
4
Baths
$
2375000

Virtual Tour

Map

Map

can help you buy this property.

Thank you! Your submission has been received!
Oops! Something went wrong while submitting the form.

Ian Watson

can help you buy this property.

Thank you! Your submission has been received!
Oops! Something went wrong while submitting the form.